I recently collaborated with six other architecture, interior design, and industrial design students to propose a renovation of the existing Pratt Institute Chapel Hall building, focusing especially on an update to the Pratt Chapel. The goal was to keep the renovation cheap and dirty (technically, cheap and green was the plan) and design partitions and furniture pieces at full scale using only free and recycled materials.
(Notice the “Feline Staff Entrance,” under the window to the left of the front door! The Pratt Cats are valued members of the Institute.)
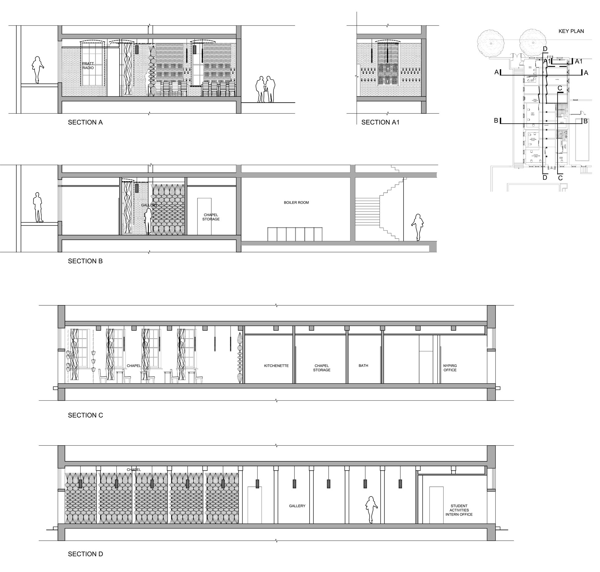
The Chapel as it stands is awkwardly retro – all the architectural elements are painted in deep, contrasting jewel tones, and the space is long and almost completely windowed on the south side facing the Engine Room courtyard.

The hallway that connects the building’s front and rear is narrow and so repetitive that the students and faculty who daily populate it’s seven crowded offices said they often walk into the wrong room.
Our proposal is to bring the hallway to life by removing walls that connect the central spine of columns and staggering the offices so that each is recognizable in its function and by its relation to the functions of the hallway. We also want to make the chapel itself wider, so that it doesn’t feel so much like a giant display case along the north wall of the courtyard.
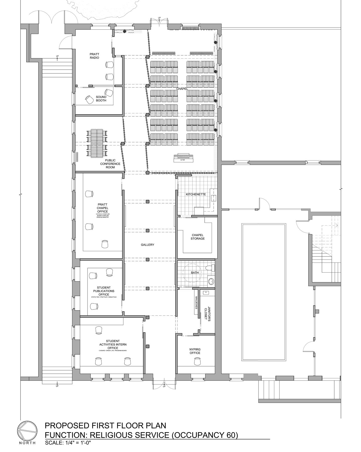
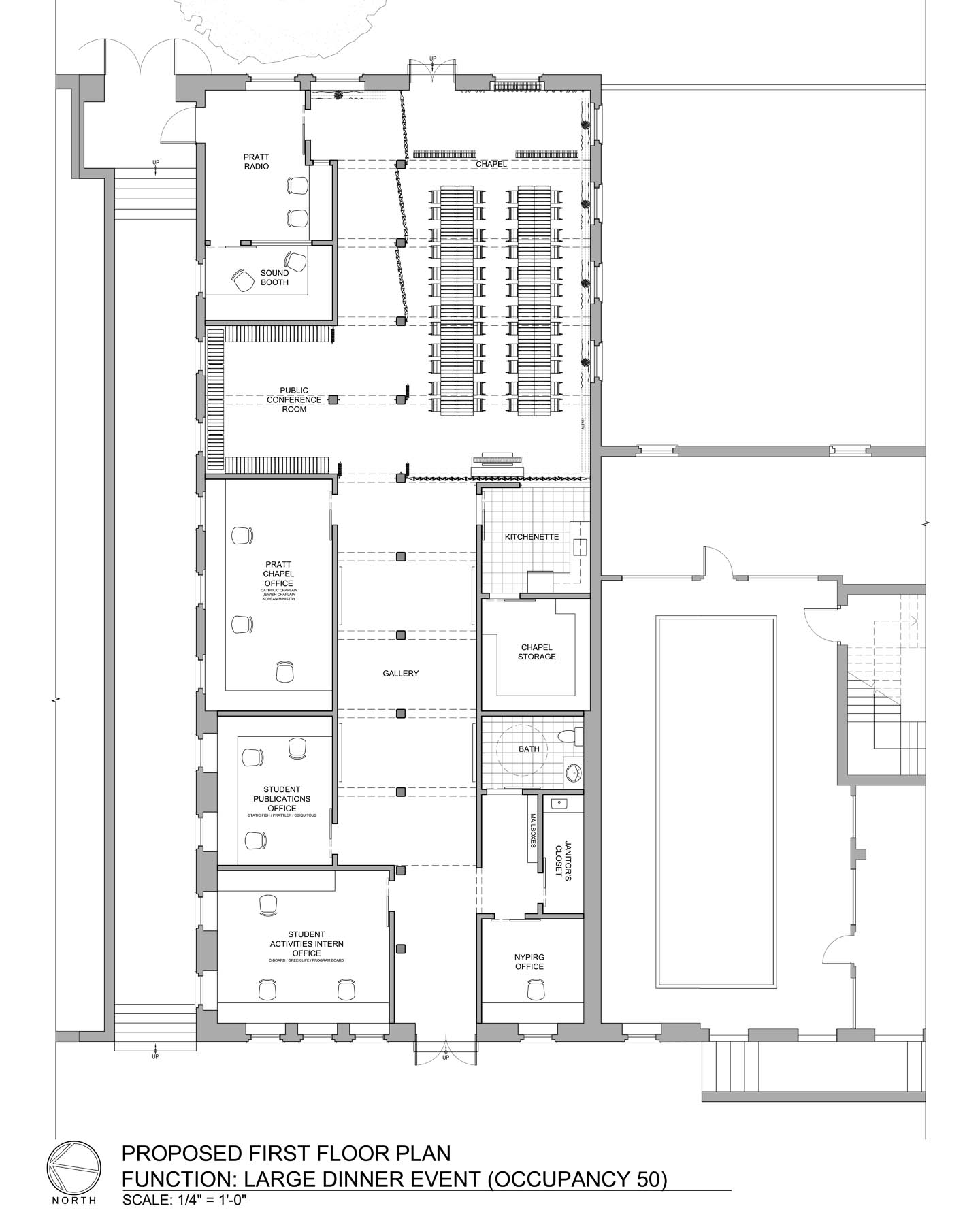
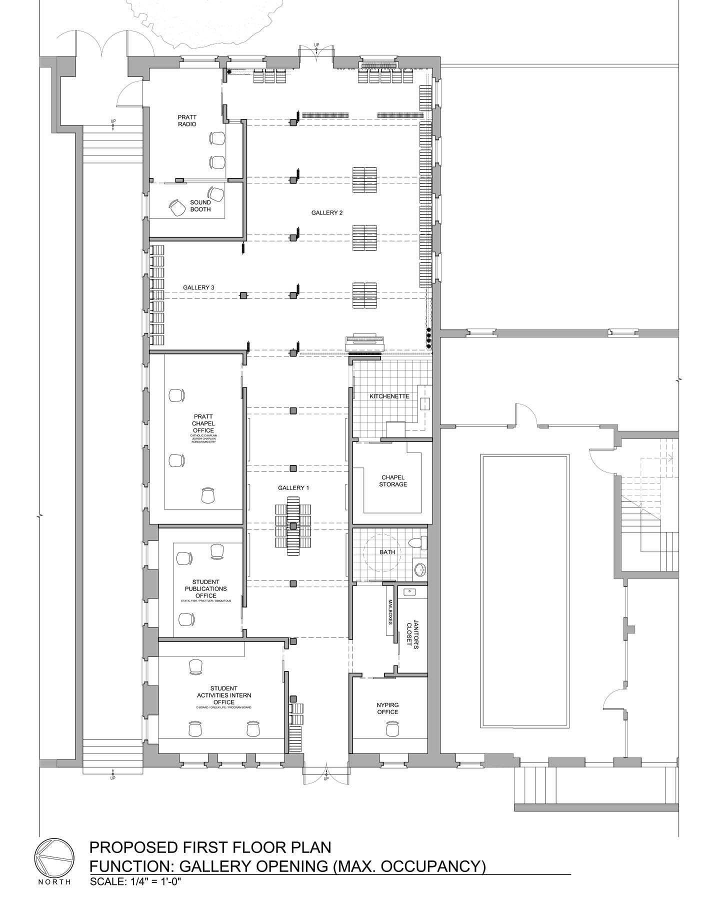
These days the Chapel is only used occasionally as a place of religion (three or four different faiths hold meetings and services here,) and the rest of the time serves as a meeting place for secret fraternity and sorority functions, a banquet hall for student organizations, a quiet place for individual study, or a private place to build your skills with the piano.
We proposed a hallway that does double duty as a gallery, a chapel with retractable and re-positionable walls (which I made cheap and green, out of trash bags,) and a new auxiliary space that can hold private meetings or open the whole building up to the chapel for large events.

Above are the renderings Kevin Wong generated of our proposal, including the furniture, lighting, and partitioning each individual created. Working with people who aren’t in Pratt’s architecture major was really refreshing – collaboration always forces you to realize how many different ways there are to solve every problem. Of course it still hasn’t convinced me that my way’s not the best. xx











